
Site:
Elizabeth Arden Building
689 5th Avenue, New York, NY 10022
Size:
100,000 SF
Type:
Healthcare
Summary:
For my Thesis project, I will be focusing on Emergencies, along with good health and wellbeing, specifically disabilities. When I think of emergencies the first thing that comes to mind is an ambulance or hospital as these are the people who would be responding to any emergency that you may have. There are many problems in the healthcare sector between finances and many health inclusive issues in the world such as people with disabilities. The Americans with Disabilities Act (ADA) defines a person with a disability as someone who: has a physical or mental impairment that substantially limits one or more major life activities, such as walking, hearing, seeing, or has a record (or past history) of having such an impairment.
Monarchs Haven for Healing: Rehabilitation Facility
Floor 1 Room Legend - Main

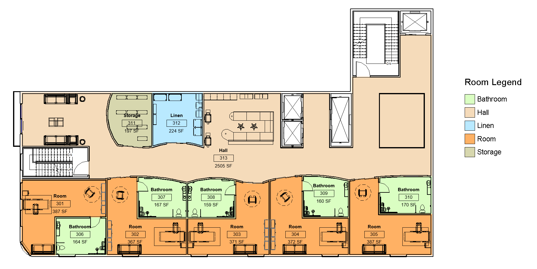
Floors 2, 3, 5, 6, and 7 - Patient Rooms

Floors 4 & 8 - Back of House

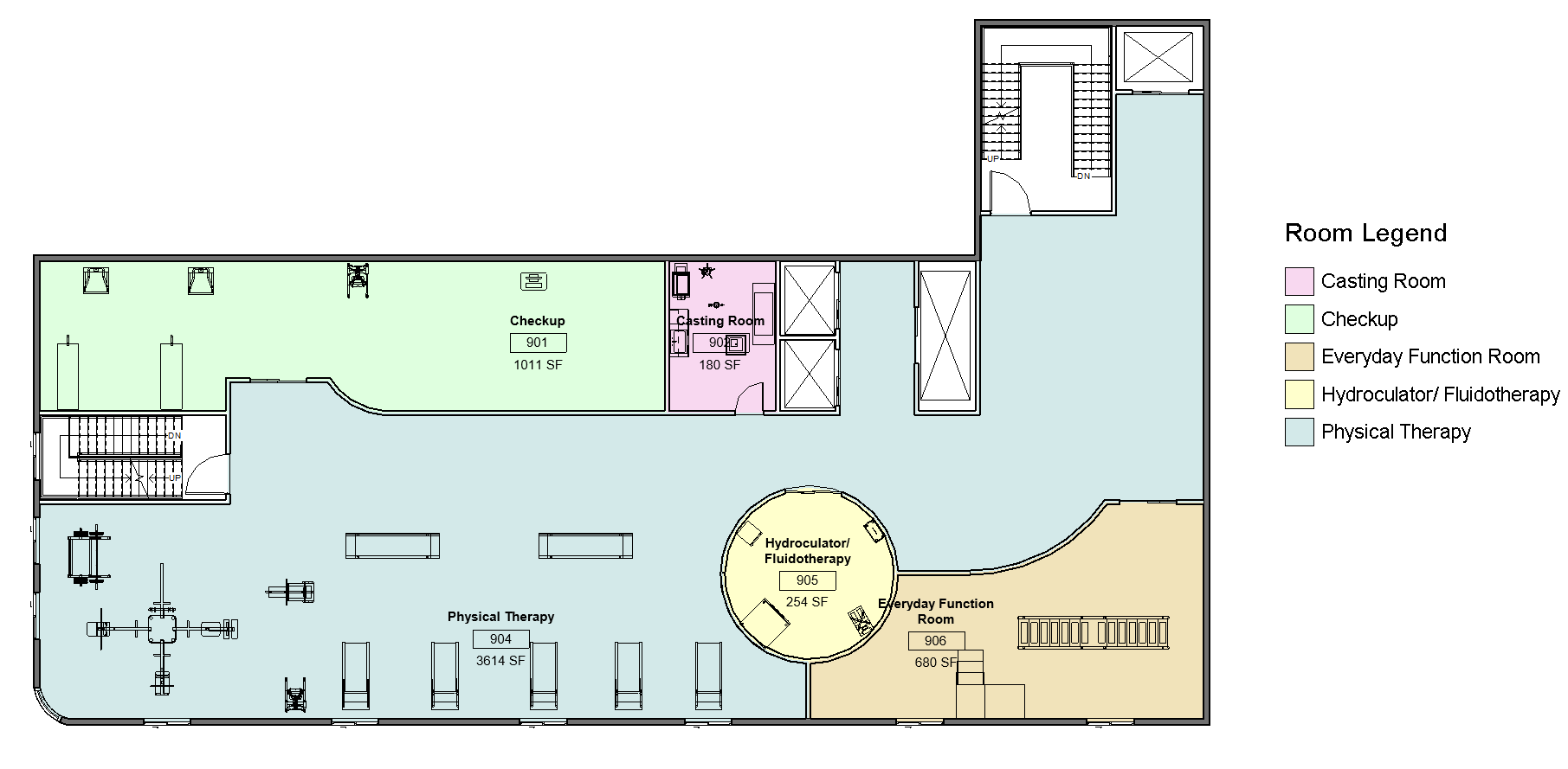
Floor 9 Room Legend- Physical Therapy

Floor 10 Room Legend- Occupational Therapy

Floor 11 Room Legend- Speech Therapy

Floor 12 Room Legend - Imaging

Floor 13- Cognitive Rehab

Floor 14 Room Legend - Mechanical Space

Floor 15 Room Legend - Obstacle Course